Description du bien immobilier
DRAGUIGNAN MAISON T6 182 m² PISCINE GARAGES, PROCHE DU CENTRE
À Draguignan, à proximité du centre et de toutes les commodités, découvrez cette belle maison familiale rénovée, idéalement agencée pour accueillir une famille, pour une profession libérale ou pour de l'investissement locatif.
Cette maison de construction traditionnelle datant de 1956, réaménagée et surélevée d'un étage, offre une belle superficie de 182 m² habitables, composée de deux appartements communicants, le tout érigé sur un terrain de 1 045 m² avec une magnifique piscine sécurisée de 10 x 5 m, exposée plein sud, et bénéficiant d'un aménagement paysager soigné.
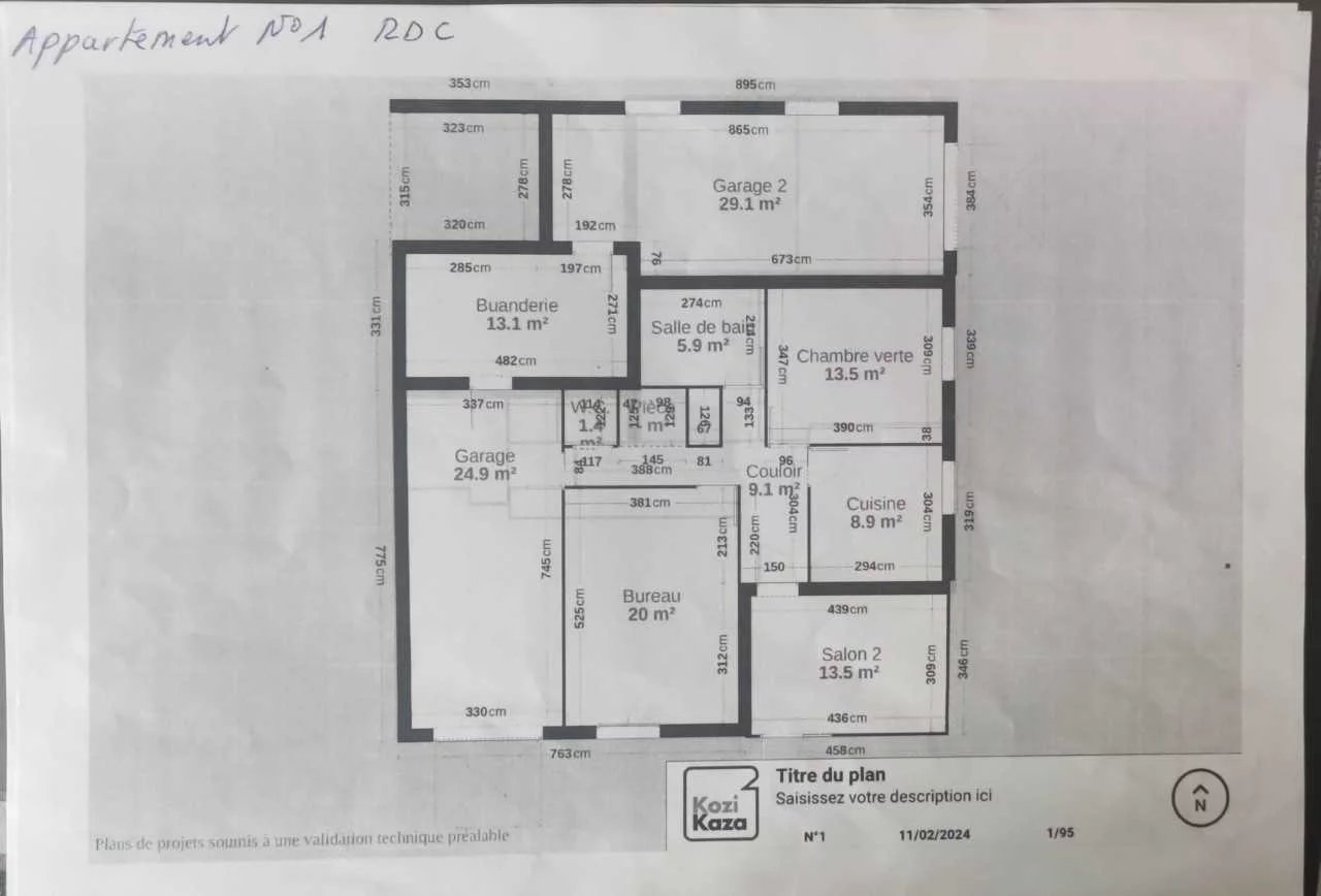
Au rez-de-chaussée, un appartement de type T2 d'environ 80 m² comprend une pièce d'accès, une entrée, une cuisine aménagée, un séjour-salon avec cheminée, une grande chambre avec vaste placard, une salle de bains avec toilettes et bidet, un dégagement avec placard, des toilettes indépendantes, ainsi qu'un accès à un premier garage de 24,9 m², une buanderie/cellier, et un second garage d'environ 29 m².
À l'étage, le second logement de type T4 d'environ 102 m² habitables comprend une salle de bains avec placard, un dégagement avec un très grand placard de rangement, des toilettes avec fenêtre, un dressing avec éclairage, une grande chambre parentale avec accès à un balcon, un bureau et une seconde chambre, ainsi qu'une grande cuisine équipée lumineuse donnant sur une petite loggia vitrée, et un vaste séjour-salon avec une belle cheminée de style.
À l'extérieur, profitez d'un barbecue avec une petite cuisine d'été, et d'un appentis pouvant servir de rangement ou d'abri.
Assainissement tout à l'égout – Fibre – Volets électriques – Fenêtres à double vitrage.
Une visite s'impose ! Cette annonce immobilière a été rédigée sous la responsabilité éditoriale de l'agent commercial mandataire immobilier Régine FINISTRE.
À Draguignan, à proximité du centre et de toutes les commodités, découvrez cette belle maison familiale rénovée, idéalement agencée pour accueillir une famille, pour une profession libérale ou pour de l'investissement locatif.
Cette maison de construction traditionnelle datant de 1956, réaménagée et surélevée d'un étage, offre une belle superficie de 182 m² habitables, composée de deux appartements communicants, le tout érigé sur un terrain de 1 045 m² avec une magnifique piscine sécurisée de 10 x 5 m, exposée plein sud, et bénéficiant d'un aménagement paysager soigné.
Au rez-de-chaussée, un appartement de type T2 d'environ 80 m² comprend une pièce d'accès, une entrée, une cuisine aménagée, un séjour-salon avec cheminée, une grande chambre avec vaste placard, une salle de bains avec toilettes et bidet, un dégagement avec placard, des toilettes indépendantes, ainsi qu'un accès à un premier garage de 24,9 m², une buanderie/cellier, et un second garage d'environ 29 m².
À l'étage, le second logement de type T4 d'environ 102 m² habitables comprend une salle de bains avec placard, un dégagement avec un très grand placard de rangement, des toilettes avec fenêtre, un dressing avec éclairage, une grande chambre parentale avec accès à un balcon, un bureau et une seconde chambre, ainsi qu'une grande cuisine équipée lumineuse donnant sur une petite loggia vitrée, et un vaste séjour-salon avec une belle cheminée de style.
À l'extérieur, profitez d'un barbecue avec une petite cuisine d'été, et d'un appentis pouvant servir de rangement ou d'abri.
Assainissement tout à l'égout – Fibre – Volets électriques – Fenêtres à double vitrage.
Une visite s'impose ! Cette annonce immobilière a été rédigée sous la responsabilité éditoriale de l'agent commercial mandataire immobilier Régine FINISTRE.
Mandat : 11824
Informations complémentaires
- Double vitrage
- Internet
- Clôture
- Piscine
- Air conditionné
- Fenêtre PVC
- Stores électriques
- Volets roulants électriques
- Barbecue
- Éclairage extérieur
- Fibre optique
- Cheminée
- Fenêtres coulissantes
- Chauffage : Individuel Fioul / Mazout Climatisation
- Étage du bien : Surélevé
- Année de construction : 1956
- Tout à l'égout
- Chaudière Individuelle
- État general : Bon état
- Taxe Foncière : 3931 €
- Terrain
- Garage
- Garage
- Chambre
- Salle de bains
- Toilettes
- Cuisine
- Salon
- Cellier
Diagnostic énergétique
N.B. : Tous les commerciaux du réseau AgentMandataire.fr sont des agents mandataires juridiquement et financièrement indépendants. Ils sont tous immatriculés au registre spécial des agents commerciaux (RSAC) et agissent pour le compte de l'agence immobilière Agent Mandataire France SAS sous la carte professionnelle n°CPI 7501 2018 000 024 109 délivrée par la CCI Paris-IDF le 01/02/2021.