Description du bien immobilier
DRAGUIGNAN LE MALMONT - MAISON T5 DE 110 M² - 4 CHAMBRES - JARDIN - VUE IMPRENABLE GARAGE
En exclusivité !
Nichée sur les hauteurs de Draguignan, à seulement cinq minutes à pied du centre-ville, cette maison élevée d'un étage d'une superficie de 110 m² s’inscrit au cœur d’un domaine sécurisé avec portail électrique, offrant un cadre de vie paisible, privilégié et recherché.
Dès l’entrée, vous serez séduit par les volumes et la luminosité du spacieux séjour avec cuisine ouverte, véritable lieu de vie convivial, s’ouvrant sur une belle terrasse et un jardin exposé sud-est bénéficiant d’une vue panoramique absolument magnifique, véritable tableau vivant au fil des saisons.
Ce jardin paysager aux essences méditerranéennes, soigneusement aménagé, est agrémenté d’un élégant mûrier platane et d’une charmante tonnelle en fer forgé, invitant à la détente.
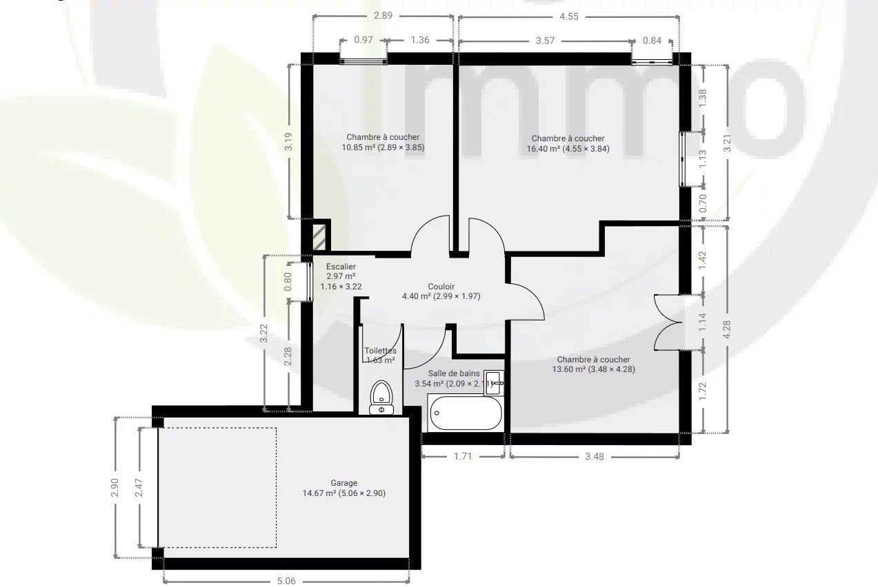
Le rez-de-chaussée accueille également une chambre avec sa salle d’eau privative ainsi que des toilettes indépendantes.
À l’étage, un dégagement dessert trois belles chambres avec placards, une salle de bains et des toilettes indépendantes, offrant un espace nuit confortable et bien agencé.
Pour un confort optimal, la maison est équipée d’une climatisation réversible dans le séjour.
Un garage accolé ainsi qu’une place de parking privative viennent compléter ce bien.
Les plus : accès à un parc privé au sein du domaine, réservé aux résidents, offrant un agréable espace de verdure supplémentaire.
Un bien rare, où calme, vue exceptionnelle et qualité de vie se conjuguent harmonieusement.
Une opportunité à ne pas manquer ! Cette annonce immobilière a été rédigée sous la responsabilité éditoriale de l'agent commercial mandataire immobilier Régine FINISTRE.
En exclusivité !
Nichée sur les hauteurs de Draguignan, à seulement cinq minutes à pied du centre-ville, cette maison élevée d'un étage d'une superficie de 110 m² s’inscrit au cœur d’un domaine sécurisé avec portail électrique, offrant un cadre de vie paisible, privilégié et recherché.
Dès l’entrée, vous serez séduit par les volumes et la luminosité du spacieux séjour avec cuisine ouverte, véritable lieu de vie convivial, s’ouvrant sur une belle terrasse et un jardin exposé sud-est bénéficiant d’une vue panoramique absolument magnifique, véritable tableau vivant au fil des saisons.
Ce jardin paysager aux essences méditerranéennes, soigneusement aménagé, est agrémenté d’un élégant mûrier platane et d’une charmante tonnelle en fer forgé, invitant à la détente.
Le rez-de-chaussée accueille également une chambre avec sa salle d’eau privative ainsi que des toilettes indépendantes.
À l’étage, un dégagement dessert trois belles chambres avec placards, une salle de bains et des toilettes indépendantes, offrant un espace nuit confortable et bien agencé.
Pour un confort optimal, la maison est équipée d’une climatisation réversible dans le séjour.
Un garage accolé ainsi qu’une place de parking privative viennent compléter ce bien.
Les plus : accès à un parc privé au sein du domaine, réservé aux résidents, offrant un agréable espace de verdure supplémentaire.
Un bien rare, où calme, vue exceptionnelle et qualité de vie se conjuguent harmonieusement.
Une opportunité à ne pas manquer ! Cette annonce immobilière a été rédigée sous la responsabilité éditoriale de l'agent commercial mandataire immobilier Régine FINISTRE.
Mandat : 12465
Informations complémentaires
- Vue : Collines
- Air conditionné
- Double vitrage
- Fenêtre PVC
- Internet
- Clôture
- Éclairage extérieur
- Interphone
- Portail électrique
- Fenêtres coulissantes
- Stores électriques
- Volets roulants électriques
- Chauffage : Individuel Electrique Convecteur
- Étage du bien : Surélevé
- Année de construction : 2008
- Tout à l'égout
- Chauffe-eau Individuelle
- État general : Bon état
- Taxe Foncière : 2093 €
- Séjour/cuisine
- Chambre
- Salle de douche
- Toilettes
- Dégagement
- Toilettes
- Chambre
- Chambre
- Chambre
- Garage
- Palier
Diagnostic énergétique
N.B. : Tous les commerciaux du réseau AgentMandataire.fr sont des agents mandataires juridiquement et financièrement indépendants. Ils sont tous immatriculés au registre spécial des agents commerciaux (RSAC) et agissent pour le compte de l'agence immobilière Agent Mandataire France SAS sous la carte professionnelle n°CPI 7501 2018 000 024 109 délivrée par la CCI Paris-IDF le 01/02/2021.