Description du bien immobilier
VENTE À TERME OCCUPÉE.
Vaste 4 pièces avec terrasse et box fermé
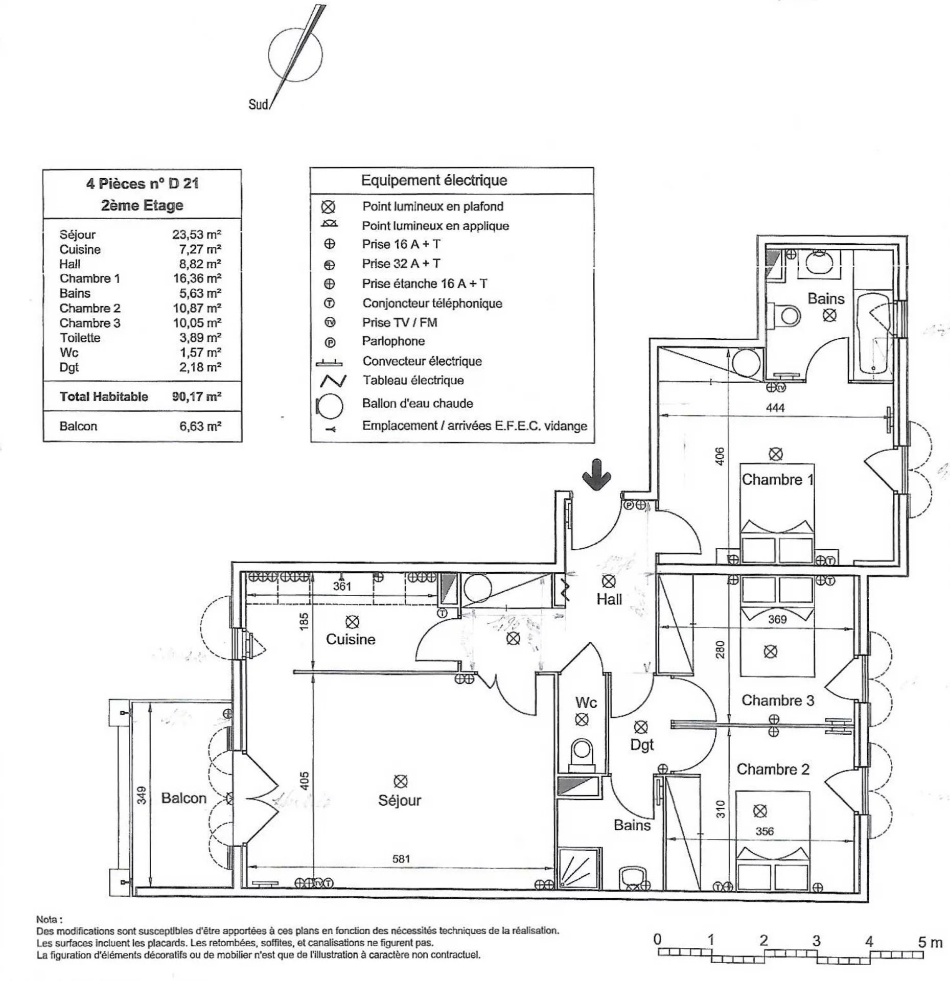
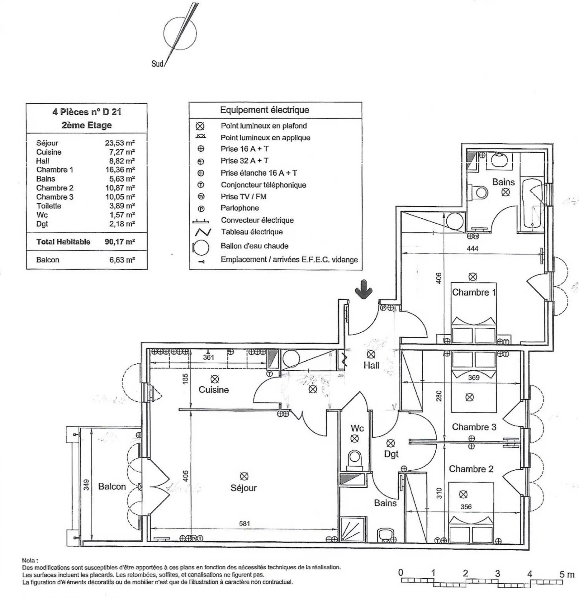
Au cœur du centre historique de Fréjus, dans un immeuble de 2006, vaste 4 pièces de 90 m2 avec terrasse de 6 m2 et box fermé de 25 m2.
Au 2e étage avec ascenseur, climatisation, un grand séjour avec cuisine et terrasse, une chambre parentale avec sa salle de bains et wc, 1 salle d'eau et WC indépendant, et 2 autres chambres.
L'espace nuit est bien séparé au calme, une belle entrée aménageable. Cuisine aménagée. Beaucoup de rangements.
Est vendu avec l'appartement un BOX en sous sol fermé de 25,68 m2 avec ascenseur.
Conditions de la vente : VENTE A TERME OCCUPÉE.
Pour acquérir ce bien, il vous faudra verser un bouquet de 50 000 € frais d'agence inclus, complétés d'une mensualité de 1933 € sur 15 ans, non indexée annuellement. En considérant que la valeur vénale du bien est de 398 000 €.
RENTE ANNUELLE : 23 196 €
Me contacter pour plus d'information sur les modalités de la vente. Cette annonce immobilière a été rédigée sous la responsabilité éditoriale de l'agent commercial mandataire immobilier Caroline GIBEAUX.
Vaste 4 pièces avec terrasse et box fermé
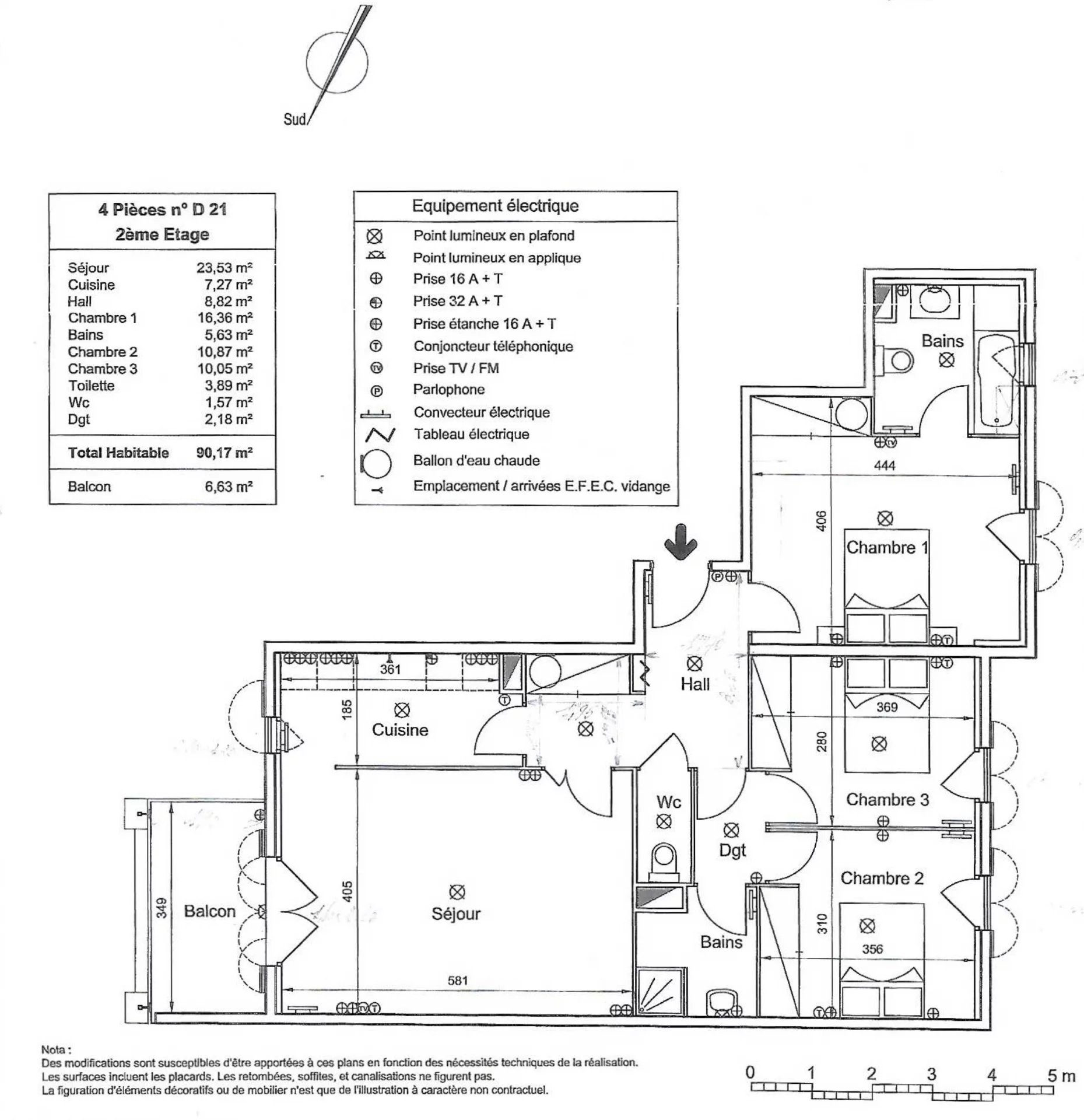
Au cœur du centre historique de Fréjus, dans un immeuble de 2006, vaste 4 pièces de 90 m2 avec terrasse de 6 m2 et box fermé de 25 m2.
Au 2e étage avec ascenseur, climatisation, un grand séjour avec cuisine et terrasse, une chambre parentale avec sa salle de bains et wc, 1 salle d'eau et WC indépendant, et 2 autres chambres.
L'espace nuit est bien séparé au calme, une belle entrée aménageable. Cuisine aménagée. Beaucoup de rangements.
Est vendu avec l'appartement un BOX en sous sol fermé de 25,68 m2 avec ascenseur.
Conditions de la vente : VENTE A TERME OCCUPÉE.
Pour acquérir ce bien, il vous faudra verser un bouquet de 50 000 € frais d'agence inclus, complétés d'une mensualité de 1933 € sur 15 ans, non indexée annuellement. En considérant que la valeur vénale du bien est de 398 000 €.
RENTE ANNUELLE : 23 196 €
Me contacter pour plus d'information sur les modalités de la vente. Cette annonce immobilière a été rédigée sous la responsabilité éditoriale de l'agent commercial mandataire immobilier Caroline GIBEAUX.
Mandat : 10527
Informations complémentaires
- Vue : Ville
- Double vitrage
- Ascenseur
- Digicode
- Interphone
- Portail électrique
- Porte blindée
- Fenêtre PVC
- Chauffage : Individuel Electrique Climatisation
- Étage du bien : 2ème
- Année de construction : 2006
- Chauffe-eau Individuelle
- État general : Bon état
- Taxe Foncière : 1615 €
- Entrée
- Dégagement
- Chambre de maître
- Salle de bains / toilettes
- Chambre
- Chambre
- Cuisine équipée
- Salle de douche
- Toilettes
- Séjour
- Terrasse
- Box
Diagnostic énergétique
N.B. : Tous les commerciaux du réseau AgentMandataire.fr sont des agents mandataires juridiquement et financièrement indépendants. Ils sont tous immatriculés au registre spécial des agents commerciaux (RSAC) et agissent pour le compte de l'agence immobilière Agent Mandataire France SAS sous la carte professionnelle n°CPI 7501 2018 000 024 109 délivrée par la CCI Paris-IDF le 01/02/2021.