Description du bien immobilier
Appartement T2 de 40 m² au sein d'une résidence récente avec ascenseur à Port Fréjus, offrant un cadre de vie calme et privilégié.
Idéalement situé au pied du canal, cet appartement vous permet de profiter d'un environnement paisible tout en étant à seulement quelques minutes à pied de la mer.
Tous les commerces de proximité sont également facilement accessibles, garantissant un quotidien des plus pratiques.
Un Intérieur Fonctionnel et Lumineux
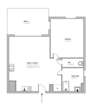
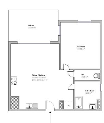
L'appartement se compose d'un séjour lumineux de 22 m² ouvert sur une cuisine, créant un espace de vie convivial et agréable.
Il dispose également d'une chambre confortable de 12 m², d'une salle d'eau et d'un WC indépendant.
Profitez d'une terrasse ensoleillée de 13 m², parfaite pour vos moments de détente en extérieur et une cave est comprise
Mais ce qui rend ce bien véritablement exceptionnel, c'est la possibilité en sus d'un grand garage fermé de 14 m².
Ne vous souciez plus du stationnement et bénéficiez d'un espace de rangement supplémentaire indispensable, des atouts extrêmement recherchés et rares dans ce secteur prisé de Port Fréjus.
Que ce soit pour un pied-à-terre, un investissement locatif ou une résidence principale, cet appartement offre une opportunité à ne pas manquer ! Cette annonce immobilière a été rédigée sous la responsabilité éditoriale de l'agent commercial mandataire immobilier Olivier SABOURIN.
Idéalement situé au pied du canal, cet appartement vous permet de profiter d'un environnement paisible tout en étant à seulement quelques minutes à pied de la mer.
Tous les commerces de proximité sont également facilement accessibles, garantissant un quotidien des plus pratiques.
Un Intérieur Fonctionnel et Lumineux
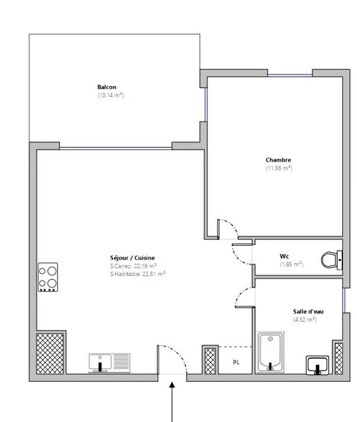
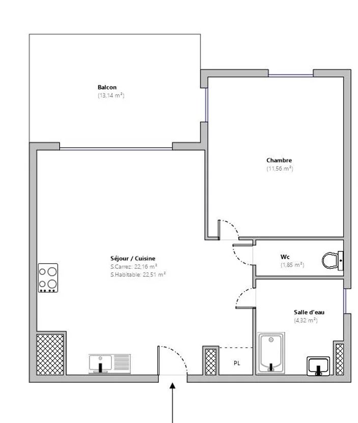
L'appartement se compose d'un séjour lumineux de 22 m² ouvert sur une cuisine, créant un espace de vie convivial et agréable.
Il dispose également d'une chambre confortable de 12 m², d'une salle d'eau et d'un WC indépendant.
Profitez d'une terrasse ensoleillée de 13 m², parfaite pour vos moments de détente en extérieur et une cave est comprise
Mais ce qui rend ce bien véritablement exceptionnel, c'est la possibilité en sus d'un grand garage fermé de 14 m².
Ne vous souciez plus du stationnement et bénéficiez d'un espace de rangement supplémentaire indispensable, des atouts extrêmement recherchés et rares dans ce secteur prisé de Port Fréjus.
Que ce soit pour un pied-à-terre, un investissement locatif ou une résidence principale, cet appartement offre une opportunité à ne pas manquer ! Cette annonce immobilière a été rédigée sous la responsabilité éditoriale de l'agent commercial mandataire immobilier Olivier SABOURIN.
Mandat : 11588
Informations complémentaires
- Double vitrage
- Volets roulants électriques
- Ascenseur
- Chauffage : Individuel Gaz Radiateur
- Étage du bien : 3ème
- Année de construction : 2016
- Tout à l'égout
- Chaudière Individuelle
- État general : Excellent état
- Taxe Foncière : 1116 €
- Séjour/cuisine
- Chambre
- Salle de douche
- Toilette PMR
- Terrasse
- Cave
- Garage
Diagnostic énergétique
N.B. : Tous les commerciaux du réseau AgentMandataire.fr sont des agents mandataires juridiquement et financièrement indépendants. Ils sont tous immatriculés au registre spécial des agents commerciaux (RSAC) et agissent pour le compte de l'agence immobilière Agent Mandataire France SAS sous la carte professionnelle n°CPI 7501 2018 000 024 109 délivrée par la CCI Paris-IDF le 01/02/2021.