Description du bien immobilier
Rare à la vente : T3 d’exception avec toit terrasse panoramique de 107 m²
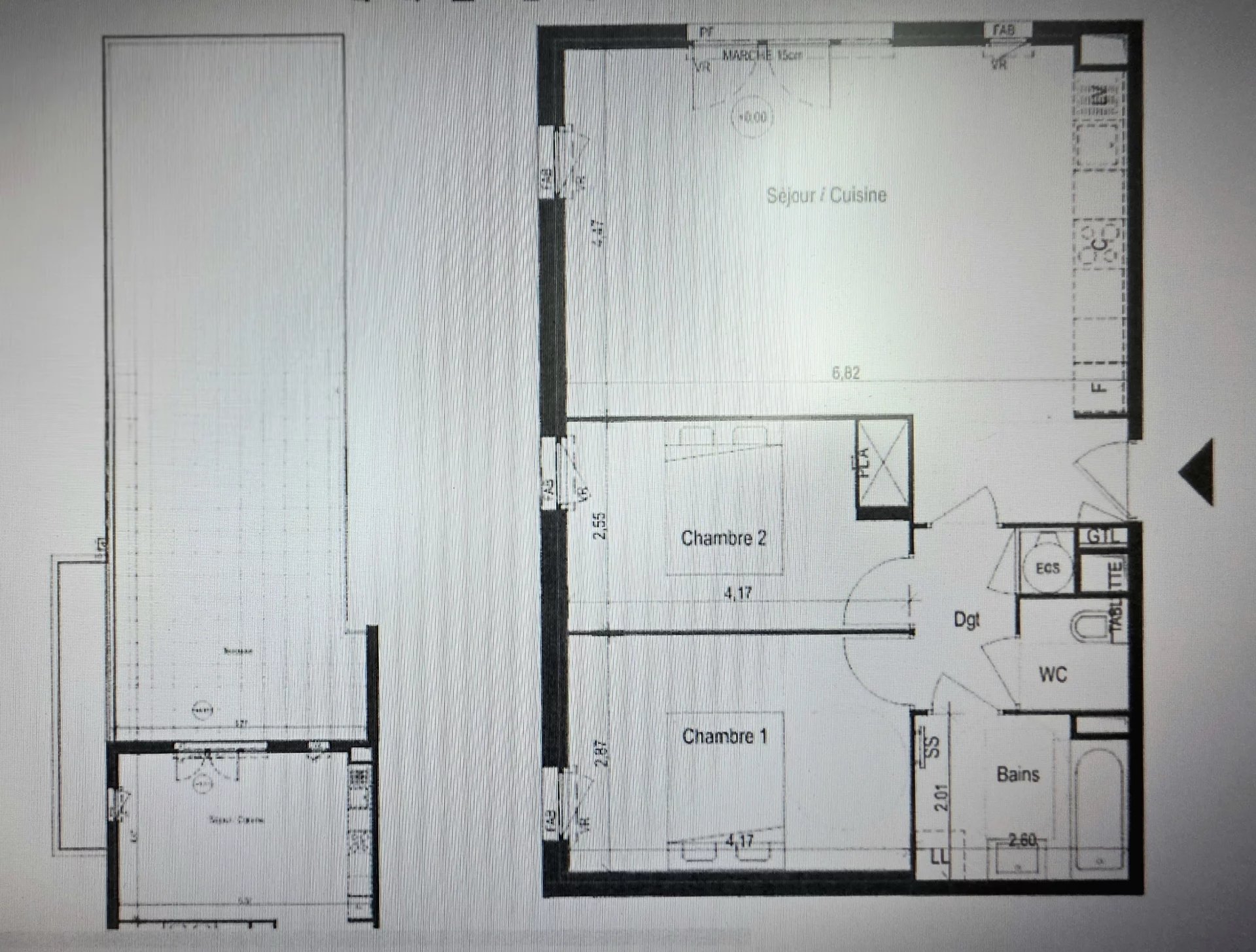
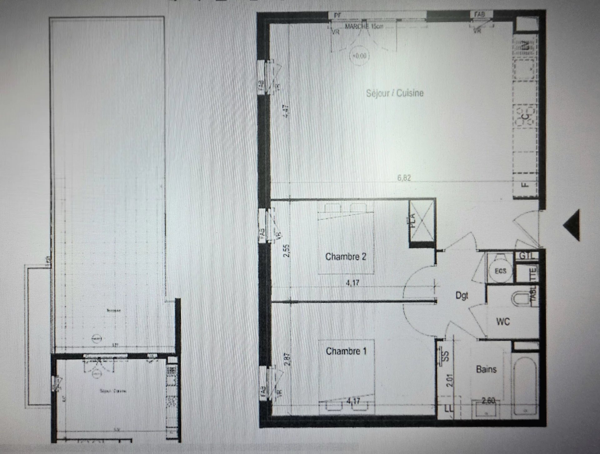
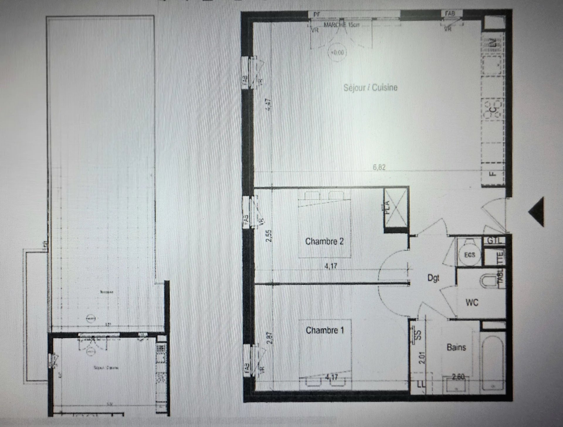
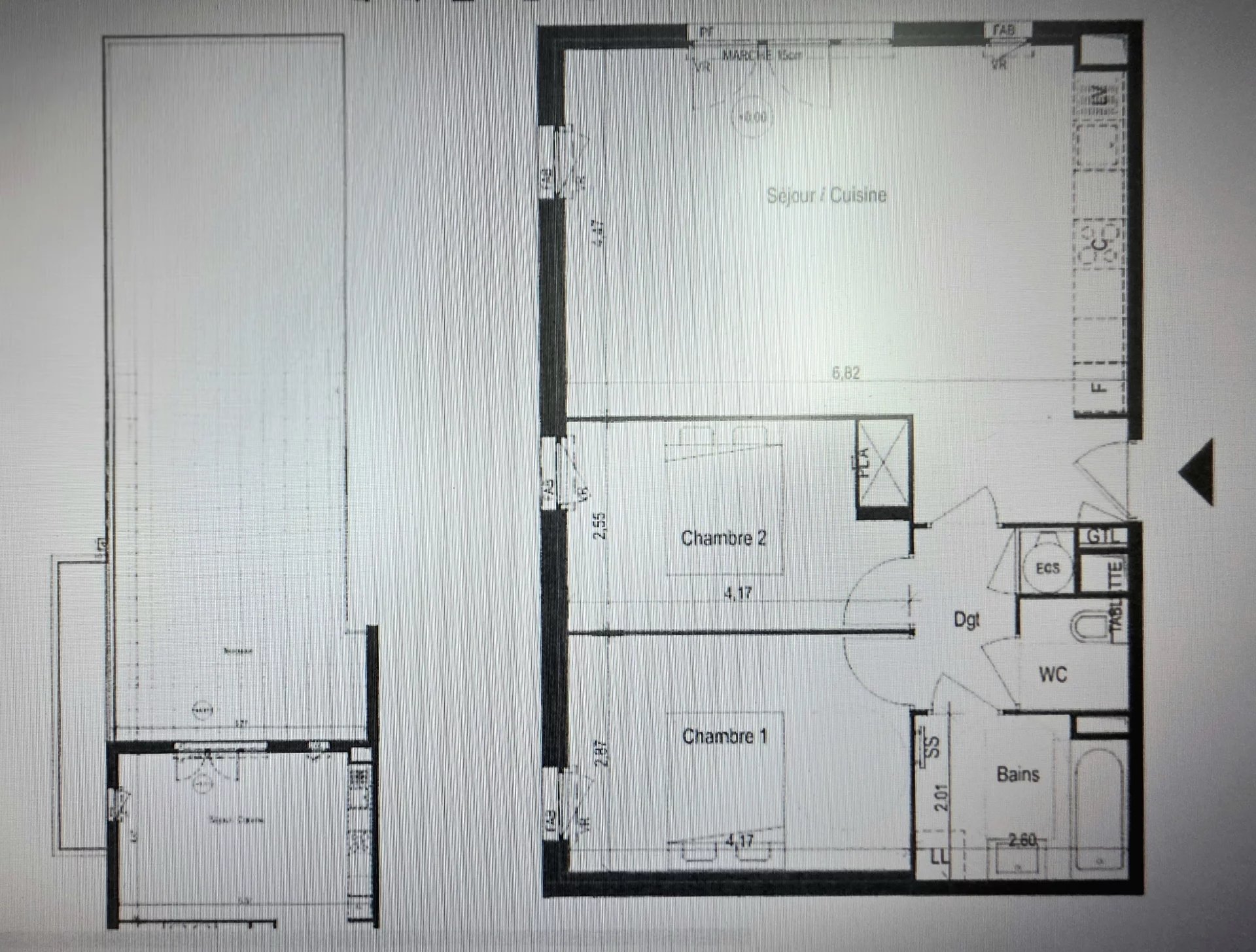
Découvrez ce superbe appartement T3 de 66 m², situé au 2ᵉ et dernier étage d’une résidence récente de standing, équipée d’un ascenseur et d’une piscine.
Véritable atout de ce logement : un immense toit terrasse de 107 m², au même niveau que l’appartement, offrant une vue panoramique dégagée sur les environs.
Un espace idéal pour profiter de moments de détente en plein air ou organiser des réceptions inoubliables.
Un intérieur confortable et fonctionnel
L’appartement se compose de :
Un séjour lumineux avec espace dédié à la cuisine de 34m2 (à aménager et à équiper), ouvrant directement sur la terrasse
Deux chambres agréables d’environ 12 m² et 11 m² avec ventilateur de plafond
Une salle d’eau moderne avec douche à l’italienne et sèche serviettes
Un WC indépendant
Prestations de qualité
Vous apprécierez également :
Chauffage électrique rayonnant dans les chambres
Pompe à chaleur avec soufflage d’air chaud et rafraichisseur pour le séjour/cuisine
Double vitrage thermique et acoustique
Volets roulants électriques
Environnement calme et verdoyant
Stationnement
✔ Une place de parking privative incluse
✔ Possibilité d’acquérir deux places supplémentaires en sous-sol
Disponible à partir du 30 Mai prochain Cette annonce immobilière a été rédigée sous la responsabilité éditoriale de l'agent commercial mandataire immobilier Stéphanie VAN DE KADSYE.
Découvrez ce superbe appartement T3 de 66 m², situé au 2ᵉ et dernier étage d’une résidence récente de standing, équipée d’un ascenseur et d’une piscine.
Véritable atout de ce logement : un immense toit terrasse de 107 m², au même niveau que l’appartement, offrant une vue panoramique dégagée sur les environs.
Un espace idéal pour profiter de moments de détente en plein air ou organiser des réceptions inoubliables.
Un intérieur confortable et fonctionnel
L’appartement se compose de :
Un séjour lumineux avec espace dédié à la cuisine de 34m2 (à aménager et à équiper), ouvrant directement sur la terrasse
Deux chambres agréables d’environ 12 m² et 11 m² avec ventilateur de plafond
Une salle d’eau moderne avec douche à l’italienne et sèche serviettes
Un WC indépendant
Prestations de qualité
Vous apprécierez également :
Chauffage électrique rayonnant dans les chambres
Pompe à chaleur avec soufflage d’air chaud et rafraichisseur pour le séjour/cuisine
Double vitrage thermique et acoustique
Volets roulants électriques
Environnement calme et verdoyant
Stationnement
✔ Une place de parking privative incluse
✔ Possibilité d’acquérir deux places supplémentaires en sous-sol
Disponible à partir du 30 Mai prochain Cette annonce immobilière a été rédigée sous la responsabilité éditoriale de l'agent commercial mandataire immobilier Stéphanie VAN DE KADSYE.
Mandat : 12169
Informations complémentaires
- Vue : Jardin
- Chauffage : Electrique Convecteur
- Étage du bien : Dernier étage
- Année de construction : 2026
- Tout à l'égout
- Chauffe-eau Individuelle
- État general : Neuf
- Entrée
- Séjour/cuisine
- Chambre
- Chambre
- Salle de douche
- Toilettes
- Terrasse
- Parking extérieur
- Parking intérieur
- Parking intérieur
Diagnostic énergétique
N.B. : Tous les commerciaux du réseau AgentMandataire.fr sont des agents mandataires juridiquement et financièrement indépendants. Ils sont tous immatriculés au registre spécial des agents commerciaux (RSAC) et agissent pour le compte de l'agence immobilière Agent Mandataire France SAS sous la carte professionnelle n°CPI 7501 2018 000 024 109 délivrée par la CCI Paris-IDF le 01/02/2021.