Description du bien immobilier
FRÉJUS CAIS APPARTEMENT T3 DERNIER ETAGE RESIDENCE AVEC PISCINE PARKING
Ce bel appartement exceptionnel, situé à Fréjus Cais, à 5 mn en voiture de l'autoroute d'un petit centre commercial, 10 mn du Centre Ville et des plages avec bus et écoles à proximité, il saura séduire les amateurs de confort et de modernité.
La Résidence récente a été conçue aux normes RT2020 avec ascenseur et piscine avec panneaux solaires pour la distribution d'eau chaude.
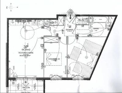
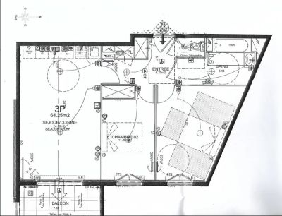
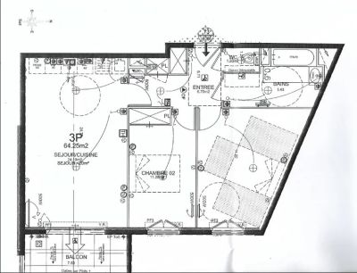
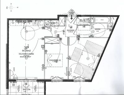
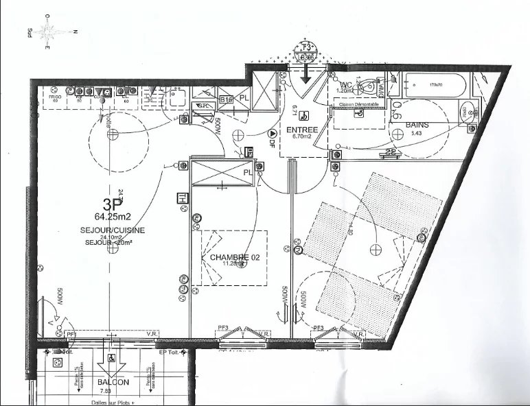
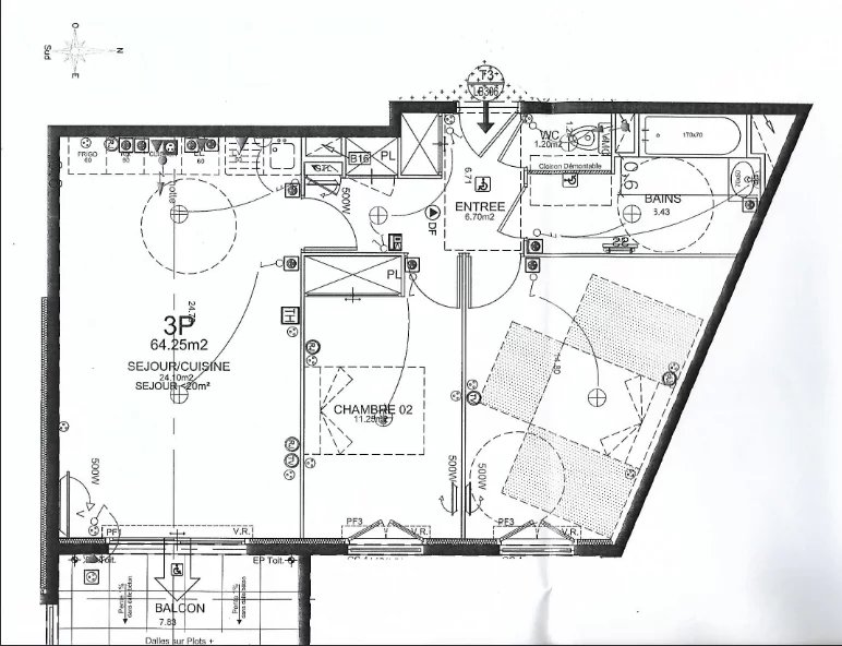
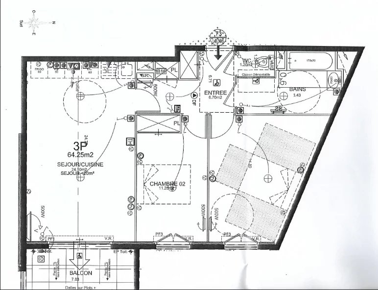
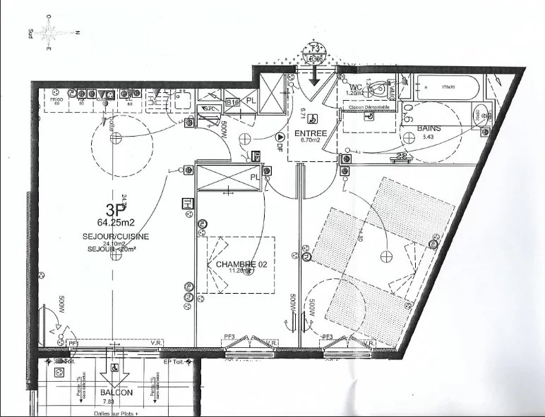
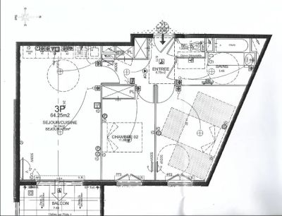
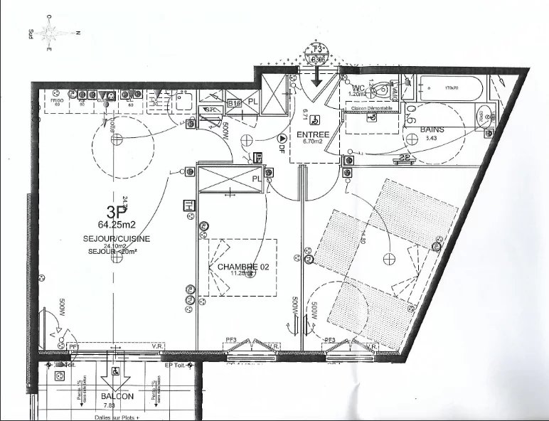
Il dispose d'une superficie de 64,25 m2 et offre deux chambres spacieuses, idéales pour un couple avec enfant ou pour recevoir des invités.
Les espaces de vie lumineux incluent un séjour avec cuisine ouverte moderne accueillant grâce à ses grandes baies vitrées coulissantes et ses fenêtres en PVC à double vitrage, garantissant une isolation thermique et acoustique optimale, une grande salle d'eau avec deux meubles vasques.
Ce bien dispose également d'équipements haut de gamme pour votre confort quotidien : climatisation récente, volets roulants électriques pour réguler facilement l'intensité de la lumière et de la chaleur.
Pour votre sécurité, l'accès à la résidence est contrôlé par un digicode et un interphone, complété par un portail électrique.
Une place de parking en sous-sol complète ce bien.
Dans les charges sont compris : Eau froide/chaude et entretien de la copropriété
Copropriété de 176 lots d'habitation.
Charges annuelles 1898 € - Estimation des coûts annuels d'énergie : 480 à 700 €
Une belle opportunité à saisir !
Pour plus de renseignements contactez votre Agent AMF Cette annonce immobilière a été rédigée sous la responsabilité éditoriale de l'agent commercial mandataire immobilier Régine FINISTRE.
Ce bel appartement exceptionnel, situé à Fréjus Cais, à 5 mn en voiture de l'autoroute d'un petit centre commercial, 10 mn du Centre Ville et des plages avec bus et écoles à proximité, il saura séduire les amateurs de confort et de modernité.
La Résidence récente a été conçue aux normes RT2020 avec ascenseur et piscine avec panneaux solaires pour la distribution d'eau chaude.
Il dispose d'une superficie de 64,25 m2 et offre deux chambres spacieuses, idéales pour un couple avec enfant ou pour recevoir des invités.
Les espaces de vie lumineux incluent un séjour avec cuisine ouverte moderne accueillant grâce à ses grandes baies vitrées coulissantes et ses fenêtres en PVC à double vitrage, garantissant une isolation thermique et acoustique optimale, une grande salle d'eau avec deux meubles vasques.
Ce bien dispose également d'équipements haut de gamme pour votre confort quotidien : climatisation récente, volets roulants électriques pour réguler facilement l'intensité de la lumière et de la chaleur.
Pour votre sécurité, l'accès à la résidence est contrôlé par un digicode et un interphone, complété par un portail électrique.
Une place de parking en sous-sol complète ce bien.
Dans les charges sont compris : Eau froide/chaude et entretien de la copropriété
Copropriété de 176 lots d'habitation.
Charges annuelles 1898 € - Estimation des coûts annuels d'énergie : 480 à 700 €
Une belle opportunité à saisir !
Pour plus de renseignements contactez votre Agent AMF Cette annonce immobilière a été rédigée sous la responsabilité éditoriale de l'agent commercial mandataire immobilier Régine FINISTRE.
Mandat : 11456
Informations complémentaires
- Air conditionné
- Double vitrage
- Fenêtre PVC
- Fenêtres coulissantes
- Stores électriques
- Volets roulants électriques
- Clôture
- Éclairage extérieur
- Accès handicapé
- Ascenseur
- Fibre optique
- Local à vélo
- Digicode
- Interphone
- Portail électrique
- Piscine en copropriété
- Chauffage : Individuel Electrique Climatisation
- Étage du bien : Dernier étage
- Année de construction : 2017
- Tout à l'égout
- Chauffe-eau Collective
- État general : Excellent état
- Taxe Foncière : 1330 €
- Séjour/cuisine
- Hall d'entrée
- Chambre
- Chambre
- Salle de douche
- Toilettes
- Balcon
Diagnostic énergétique
N.B. : Tous les commerciaux du réseau AgentMandataire.fr sont des agents mandataires juridiquement et financièrement indépendants. Ils sont tous immatriculés au registre spécial des agents commerciaux (RSAC) et agissent pour le compte de l'agence immobilière Agent Mandataire France SAS sous la carte professionnelle n°CPI 7501 2018 000 024 109 délivrée par la CCI Paris-IDF le 01/02/2021.