Description du bien immobilier
Dans une résidence de caractère des années 1900, nichée au cœur d’un parc arboré privé d’environ 0,91 hectare (9 151 m²), venez découvrir ce bel appartement de 107 m², situé au 1er étage avec ascenseur.
Le charme de l’ancien opère immédiatement : hauteur sous plafond de 2,90 m, volumes généreux et belle luminosité offrent une atmosphère élégante, chaleureuse et authentique.
Idéalement situé, à seulement 9 minutes en voiture du centre-ville de Saint-Raphaël, de la gare TGV, 10 minutes des plages de Fréjus et Saint-Raphaël et 9 minutes des golfs de Valescure ou de l’accès autoroute, un emplacement privilégié qui allie tranquillité, nature et proximité des loisirs.
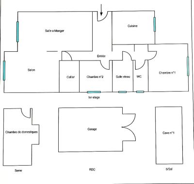
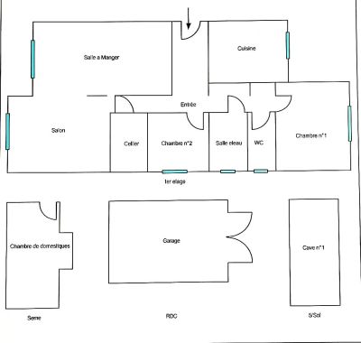
L’appartement se compose de :
Séjour lumineux de 39 m²,
Cuisine indépendante équipée (11 m²),
Deux chambres (18 m² et 13 m²),
Salle d’eau avec douche à l’italienne et fenêtre,
WC indépendant avec fenêtre,
Dressing.
Inclus dans les charges, chauffage central, ainsi que l’eau froide, gardien, entretien des parties communes et parc.
Points forts supplémentaires :
Garage de 22 m²,
Cave d’environ 7 m²,
Grenier de 12 m²,
Parkings supplémentaires libres dans la copropriété,
Petite copropriété de 30 propriétaires.
Un bien rare sur le secteur, destiné aux amoureux de cachet, d’espace et de verdure, recherchant un cadre de vie privilégié. Cette annonce immobilière a été rédigée sous la responsabilité éditoriale de l'agent commercial mandataire immobilier Olivier SABOURIN.
Le charme de l’ancien opère immédiatement : hauteur sous plafond de 2,90 m, volumes généreux et belle luminosité offrent une atmosphère élégante, chaleureuse et authentique.
Idéalement situé, à seulement 9 minutes en voiture du centre-ville de Saint-Raphaël, de la gare TGV, 10 minutes des plages de Fréjus et Saint-Raphaël et 9 minutes des golfs de Valescure ou de l’accès autoroute, un emplacement privilégié qui allie tranquillité, nature et proximité des loisirs.
L’appartement se compose de :
Séjour lumineux de 39 m²,
Cuisine indépendante équipée (11 m²),
Deux chambres (18 m² et 13 m²),
Salle d’eau avec douche à l’italienne et fenêtre,
WC indépendant avec fenêtre,
Dressing.
Inclus dans les charges, chauffage central, ainsi que l’eau froide, gardien, entretien des parties communes et parc.
Points forts supplémentaires :
Garage de 22 m²,
Cave d’environ 7 m²,
Grenier de 12 m²,
Parkings supplémentaires libres dans la copropriété,
Petite copropriété de 30 propriétaires.
Un bien rare sur le secteur, destiné aux amoureux de cachet, d’espace et de verdure, recherchant un cadre de vie privilégié. Cette annonce immobilière a été rédigée sous la responsabilité éditoriale de l'agent commercial mandataire immobilier Olivier SABOURIN.
Mandat : 11878
Informations complémentaires
- Honoraires à charge de l'acquéreur :
- Prix hors honoraires : 341000 €
- Honoraires TTC à la charge de l'acquéreur : 18000 €
- Vue : Jardin
- Double vitrage
- Ascenseur
- Jardin en copropriété
- Fibre optique
- Gardien
- Interphone
- Chauffage : Collectif Gaz Central
- Étage du bien : 1er
- Année de construction : 1890
- Tout à l'égout
- Chauffe-eau Individuelle
- État general : Bon état
- Taxe Foncière : 1621 €
- Garage
- Cave
- Entrée
- Cuisine
- Séjour
- Cellier
- Chambre
- Chambre
- Salle de douche
- Toilettes
- Chambre de service
Diagnostic énergétique
N.B. : Tous les commerciaux du réseau AgentMandataire.fr sont des agents mandataires juridiquement et financièrement indépendants. Ils sont tous immatriculés au registre spécial des agents commerciaux (RSAC) et agissent pour le compte de l'agence immobilière Agent Mandataire France SAS sous la carte professionnelle n°CPI 7501 2018 000 024 109 délivrée par la CCI Paris-IDF le 01/02/2021.