Description du bien immobilier
LOCATION PURE LOCAL COMMERCIAL 75011 PARIS
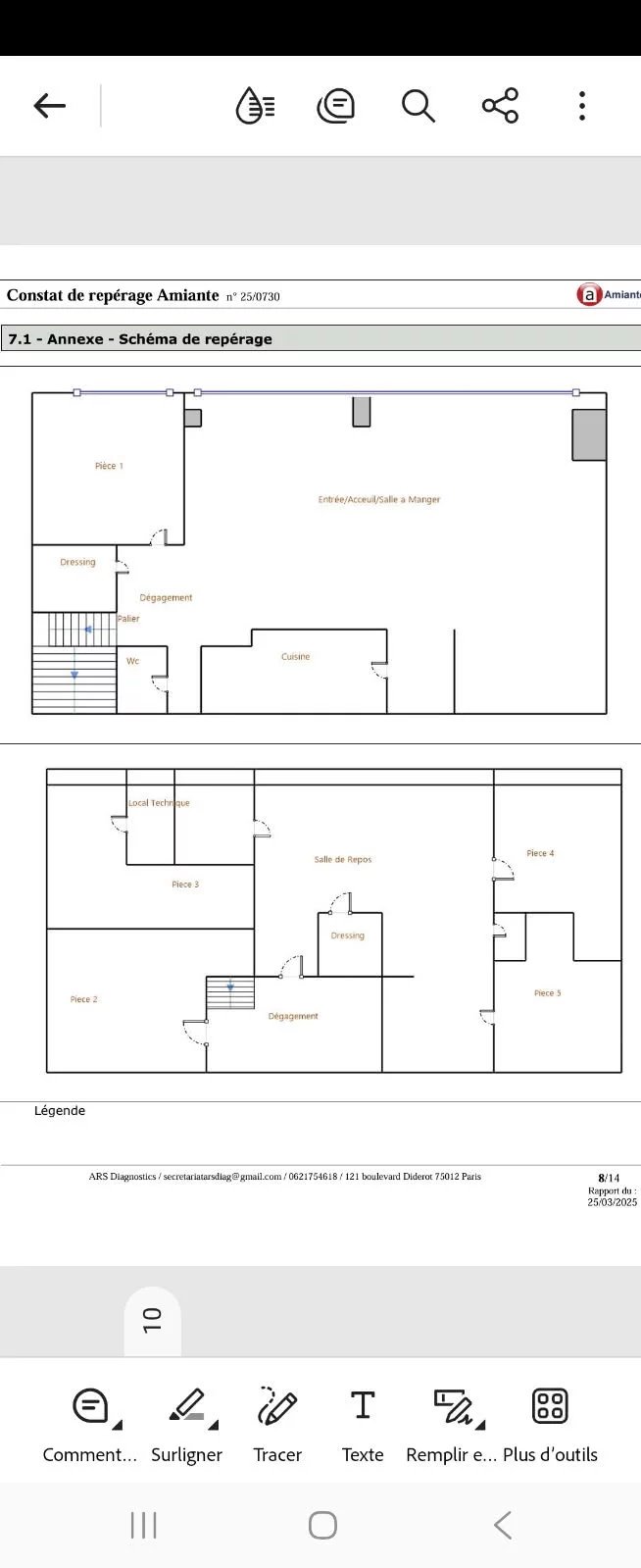
À louer, local commercial en location pure de 170 m² situé dans le 11ᵉ arrondissement de Paris, dans le quartier le plus animé de cet arrondissement, à proximité du métro Saint-Maur.
Ce dernier s'établit au RDC sur 70 m², avec accès direct au sous-sol de 100 m² avec un SPA et hammam et un linéaire de 14 mètres.
Le tout est exploitable pour tous types d'activités, sauf restauration avec extraction.
Un accès au sous-sol peut se faire par ascenseur dans les parties communes.
Loyer mensuel : 4 800 € HT/HC
Charges mensuelles : 400 € HT
N'hésitez pas à me contacter pour de plus amples informations. Une visite s'impose. Cette annonce immobilière a été rédigée sous la responsabilité éditoriale de l'agent commercial mandataire immobilier Daniel ASSELIE.
À louer, local commercial en location pure de 170 m² situé dans le 11ᵉ arrondissement de Paris, dans le quartier le plus animé de cet arrondissement, à proximité du métro Saint-Maur.
Ce dernier s'établit au RDC sur 70 m², avec accès direct au sous-sol de 100 m² avec un SPA et hammam et un linéaire de 14 mètres.
Le tout est exploitable pour tous types d'activités, sauf restauration avec extraction.
Un accès au sous-sol peut se faire par ascenseur dans les parties communes.
Loyer mensuel : 4 800 € HT/HC
Charges mensuelles : 400 € HT
N'hésitez pas à me contacter pour de plus amples informations. Une visite s'impose. Cette annonce immobilière a été rédigée sous la responsabilité éditoriale de l'agent commercial mandataire immobilier Daniel ASSELIE.
Mandat : 11802
Informations complémentaires
- Honoraires à charge de l'acquéreur :
- Honoraires TTC à la charge de l'acquéreur : 14850 €
- Air conditionné
- Internet
- Accès handicapé
- Ascenseur
- Fibre optique
- Faux plafond
- Sauna
- Spa
- État general : Bon état
- Prix global : 5200€ cc/mois
- charges locatives : 400€/mois
Diagnostic énergétique
N.B. : Tous les commerciaux du réseau AgentMandataire.fr sont des agents mandataires juridiquement et financièrement indépendants. Ils sont tous immatriculés au registre spécial des agents commerciaux (RSAC) et agissent pour le compte de l'agence immobilière Agent Mandataire France SAS sous la carte professionnelle n°CPI 7501 2018 000 024 109 délivrée par la CCI Paris-IDF le 01/02/2021.