Description du bien immobilier
Villa contemporaine neuve 6 pièces – 120 m² – 4 chambres - garage.
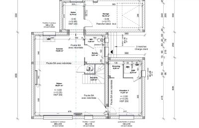
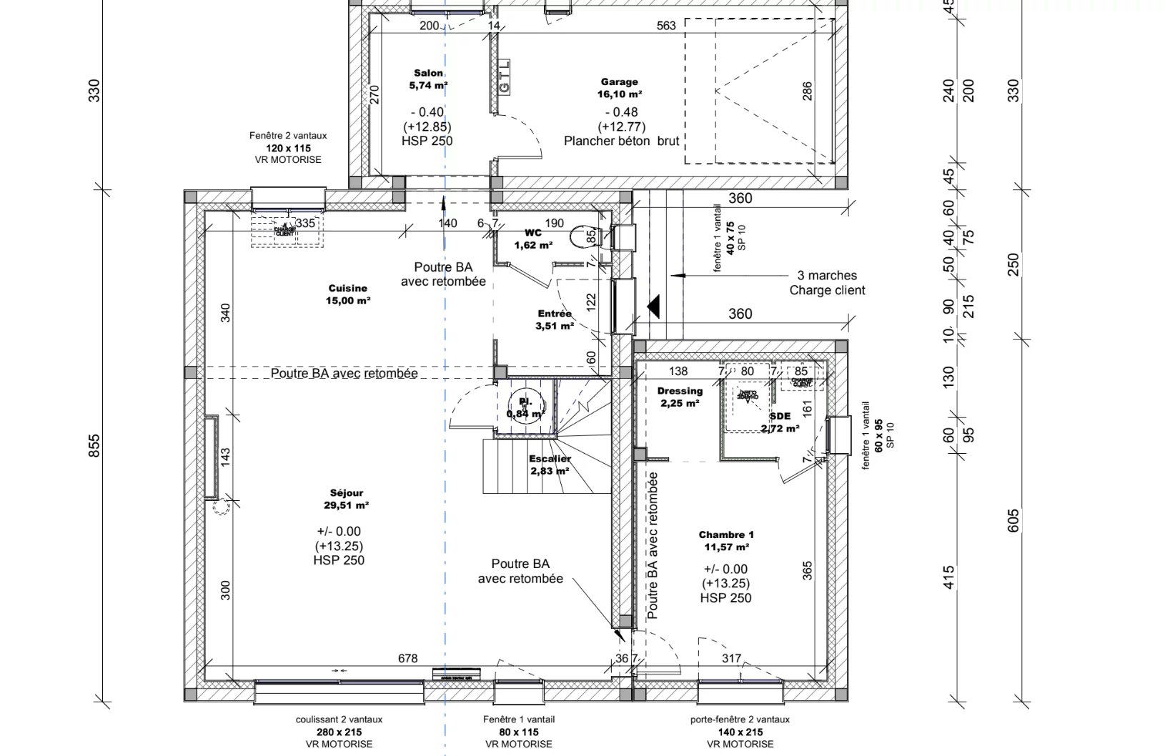
En fond d'impasse, à 5 minutes de l'accès A8 et du centre ville de Puget sur Argens je vous propose cette villa contemporaine d’environ 120 m², pensée pour offrir un cadre de vie confortable et moderne. Dès l’entrée, vous serez conquis par une pièce de vie de 50 m² réunissant séjour, salon et cuisine ouverte entièrement équipée, idéal pour recevoir et partager des moments en famille à cela s'ajoute un garage attenant et la possibilité de faire une buanderie ou arrière cuisine .
De plain-pied également une suite parentale bénéficie d’un accès direct au jardin et à la grande terrasse, créant un véritable espace de détente.
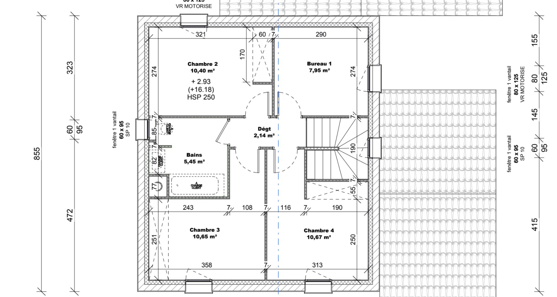
À l’étage, trois chambres, un bureau (ou grand dressing selon vos besoins) et une salle de bains avec baignoire, double vasque et WC offrant ainsi à chacun son espace.
Les plus: Climatisation, Domotique, portail électrique, exposition SUD, grande pièce de vie, garantie décennale, garage.
Les extérieurs sont à paysager vous laissant ainsi le choix d'aménager et arborer selon vos envies le jardin.( parcelle de 700m²)
Terrain piscinable. Cette annonce immobilière a été rédigée sous la responsabilité éditoriale de l'agent commercial mandataire immobilier Stéphanie VAN DE KADSYE.
En fond d'impasse, à 5 minutes de l'accès A8 et du centre ville de Puget sur Argens je vous propose cette villa contemporaine d’environ 120 m², pensée pour offrir un cadre de vie confortable et moderne. Dès l’entrée, vous serez conquis par une pièce de vie de 50 m² réunissant séjour, salon et cuisine ouverte entièrement équipée, idéal pour recevoir et partager des moments en famille à cela s'ajoute un garage attenant et la possibilité de faire une buanderie ou arrière cuisine .
De plain-pied également une suite parentale bénéficie d’un accès direct au jardin et à la grande terrasse, créant un véritable espace de détente.
À l’étage, trois chambres, un bureau (ou grand dressing selon vos besoins) et une salle de bains avec baignoire, double vasque et WC offrant ainsi à chacun son espace.
Les plus: Climatisation, Domotique, portail électrique, exposition SUD, grande pièce de vie, garantie décennale, garage.
Les extérieurs sont à paysager vous laissant ainsi le choix d'aménager et arborer selon vos envies le jardin.( parcelle de 700m²)
Terrain piscinable. Cette annonce immobilière a été rédigée sous la responsabilité éditoriale de l'agent commercial mandataire immobilier Stéphanie VAN DE KADSYE.
Mandat : 12030
Informations complémentaires
- Vue : Jardin
- Air conditionné
- Double vitrage
- Stores électriques
- Domotique
- Fenêtre aluminium
- Fenêtres coulissantes
- Volets roulants électriques
- Clôture
- Chauffage : Individuel Electrique Convecteur
- Année de construction : 2025
- Tout à l'égout
- Pompe à chaleur Individuelle
- État general : Bon état
- Séjour/cuisine
- Chambre
- Chambre
- Chambre
- Chambre
- Bureau
- Salle de bains
- Terrain
Diagnostic énergétique
N.B. : Tous les commerciaux du réseau AgentMandataire.fr sont des agents mandataires juridiquement et financièrement indépendants. Ils sont tous immatriculés au registre spécial des agents commerciaux (RSAC) et agissent pour le compte de l'agence immobilière Agent Mandataire France SAS sous la carte professionnelle n°CPI 7501 2018 000 024 109 délivrée par la CCI Paris-IDF le 01/02/2021.