Description du bien immobilier
T1 Bis - SAINT-GERMAIN EN LAYE
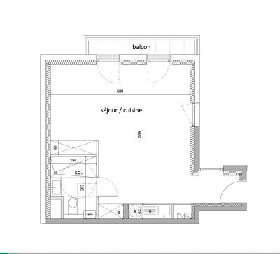
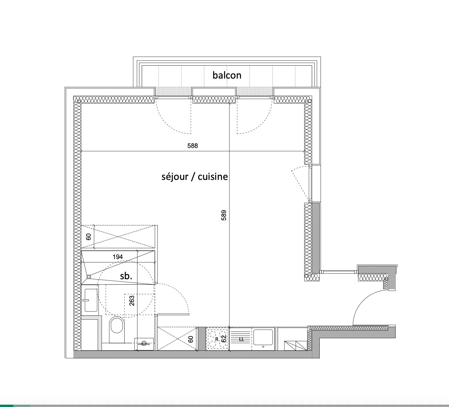
À 15 minutes à pied du centre de Saint-Germain-en-Laye, dans une résidence neuve, découvrez ce beau T1 Bis de 40 m2 situé au premier étage.
Il se compose d’une entrée ouvrant sur un séjour spacieux et lumineux avec coin cuisine, le tout donnant sur un balcon filant. Vous y trouverez également une grande salle d’eau avec WC.
Grâce à la profondeur du séjour, vous pouvez facilement créer une séparation (claustra, verrière ou meuble demi-hauteur) pour obtenir un espace nuit distinct et transformer ce T1 Bis en un vrai 2 pièces.
Un cadre de vie idéal, entre confort moderne et proximité du centre-ville.
Grâce à la profondeur du séjour, vous pouvez facilement créer une séparation (claustra, verrière ou meuble demi-hauteur) pour obtenir un espace nuit distinct et transformer ce T1 Bis en un vrai 2 pièces.
Un cadre de vie idéal, entre confort moderne et proximité du centre-ville. Cette annonce immobilière a été rédigée sous la responsabilité éditoriale de l'agent commercial mandataire immobilier Bérangère LEROY.
À 15 minutes à pied du centre de Saint-Germain-en-Laye, dans une résidence neuve, découvrez ce beau T1 Bis de 40 m2 situé au premier étage.
Il se compose d’une entrée ouvrant sur un séjour spacieux et lumineux avec coin cuisine, le tout donnant sur un balcon filant. Vous y trouverez également une grande salle d’eau avec WC.
Grâce à la profondeur du séjour, vous pouvez facilement créer une séparation (claustra, verrière ou meuble demi-hauteur) pour obtenir un espace nuit distinct et transformer ce T1 Bis en un vrai 2 pièces.
Un cadre de vie idéal, entre confort moderne et proximité du centre-ville.
Grâce à la profondeur du séjour, vous pouvez facilement créer une séparation (claustra, verrière ou meuble demi-hauteur) pour obtenir un espace nuit distinct et transformer ce T1 Bis en un vrai 2 pièces.
Un cadre de vie idéal, entre confort moderne et proximité du centre-ville. Cette annonce immobilière a été rédigée sous la responsabilité éditoriale de l'agent commercial mandataire immobilier Bérangère LEROY.
Mandat : 11274
Informations complémentaires
- Honoraires à charge de l'acquéreur :
- Prix hors honoraires : 355000 €
- Honoraires TTC à la charge de l'acquéreur : 10000 €
- Double vitrage
- Fenêtre PVC
- Stores électriques
- Étage du bien : 1er
- Année de construction : 2025
- État general : Neuf
- Séjour/cuisine
- Salle de douche / toilettes
- Balcon
Diagnostic énergétique
N.B. : Tous les commerciaux du réseau AgentMandataire.fr sont des agents mandataires juridiquement et financièrement indépendants. Ils sont tous immatriculés au registre spécial des agents commerciaux (RSAC) et agissent pour le compte de l'agence immobilière Agent Mandataire France SAS sous la carte professionnelle n°CPI 7501 2018 000 024 109 délivrée par la CCI Paris-IDF le 01/02/2021.