Description du bien immobilier
Saint-Raphaël, secteur tout à pied, à 1 km du centre-ville et de la gare TGV et 1,7 km de la plage du Veillat, dans une résidence privée et sécurisée, venez découvrir cet appartement de type F3 de 54 m² avec balcon, cave et stationnement privé.
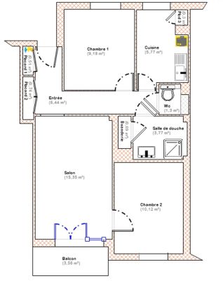
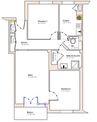
L'appartement se situe au 3ᵉ et dernier étage. Il se compose d'une entrée avec 2 placards, une cuisine indépendante, un séjour, 2 chambres, une salle d'eau, un WC, le tout complété par un balcon et sa vue sur le jardin.
Une cave et une place de parking privée viennent compléter le bien.
130 € / mois de charges (chauffage compris). Taxe foncière : 914 €.
Idéal pour un 1er achat, rafraîchissement à prévoir. Cette annonce immobilière a été rédigée sous la responsabilité éditoriale de l'agent commercial mandataire immobilier Stéphanie VAN DE KADSYE.
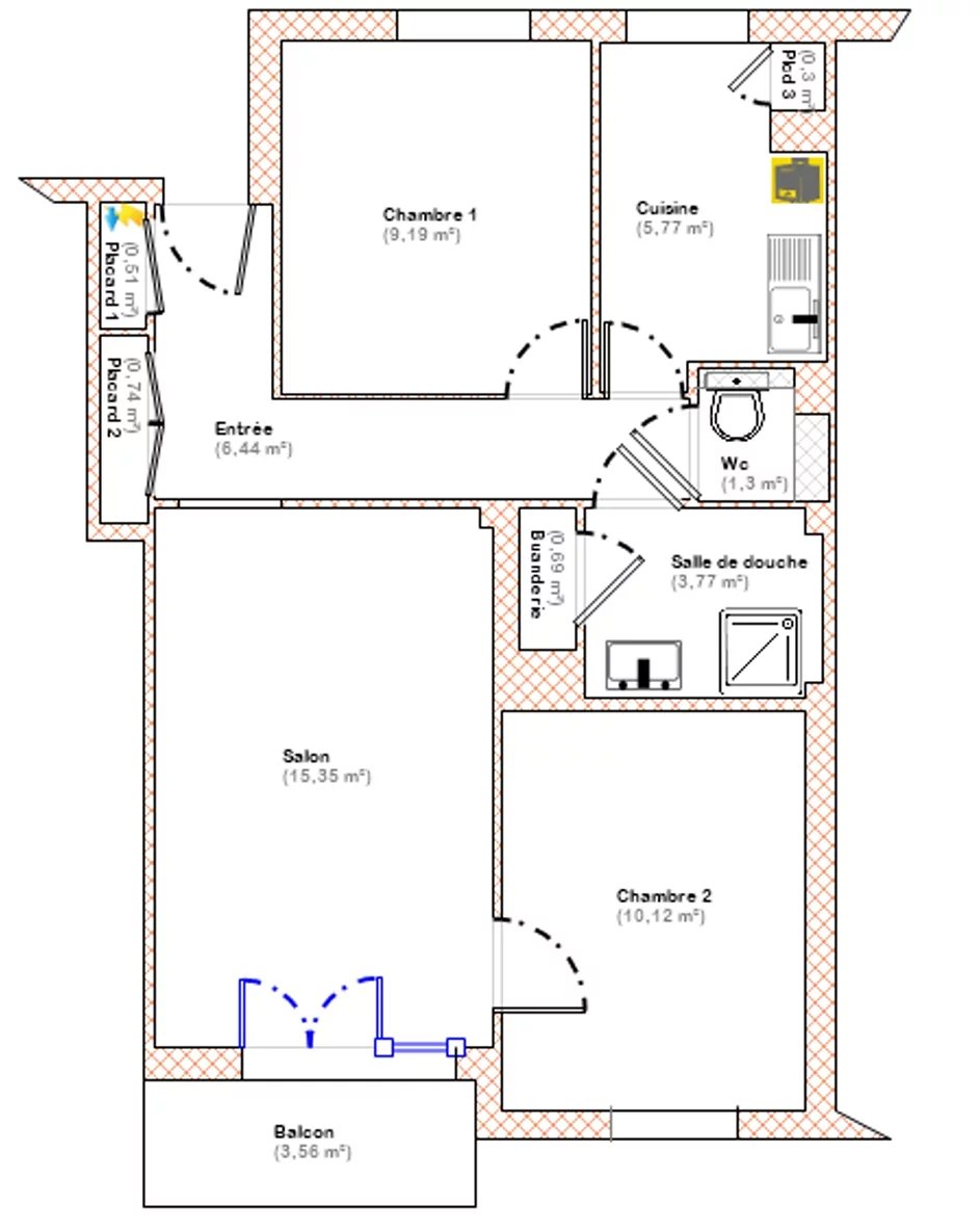
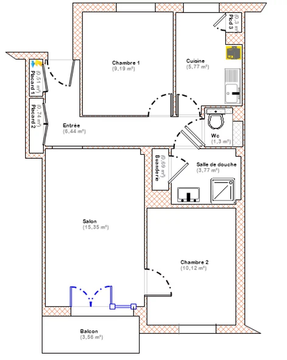
L'appartement se situe au 3ᵉ et dernier étage. Il se compose d'une entrée avec 2 placards, une cuisine indépendante, un séjour, 2 chambres, une salle d'eau, un WC, le tout complété par un balcon et sa vue sur le jardin.
Une cave et une place de parking privée viennent compléter le bien.
130 € / mois de charges (chauffage compris). Taxe foncière : 914 €.
Idéal pour un 1er achat, rafraîchissement à prévoir. Cette annonce immobilière a été rédigée sous la responsabilité éditoriale de l'agent commercial mandataire immobilier Stéphanie VAN DE KADSYE.
Mandat : 12246
Informations complémentaires
- Vue : Parc
- Double vitrage
- Internet
- Interphone
- Portail électrique
- Fenêtre PVC
- Chauffage : Collectif Gaz Central
- Étage du bien : Dernier étage
- Année de construction : 1970
- Tout à l'égout
- Chaudière Collective
- État general : À rafraîchir
- Cuisine
- Séjour
- Chambre
- Chambre
- Salle de douche
- Toilettes
- Balcon
- Cave
- Parking
Diagnostic énergétique
N.B. : Tous les commerciaux du réseau AgentMandataire.fr sont des agents mandataires juridiquement et financièrement indépendants. Ils sont tous immatriculés au registre spécial des agents commerciaux (RSAC) et agissent pour le compte de l'agence immobilière Agent Mandataire France SAS sous la carte professionnelle n°CPI 7501 2018 000 024 109 délivrée par la CCI Paris-IDF le 01/02/2021.