Description du bien immobilier
À Vendre – T2 Refait à Neuf à Saint-Raphaël
À seulement 200 mètres des plages et à proximité immédiate du centre-ville, ce charmant appartement T2 entièrement rénové représente une opportunité idéale pour un investissement locatif.
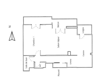
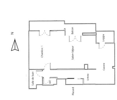
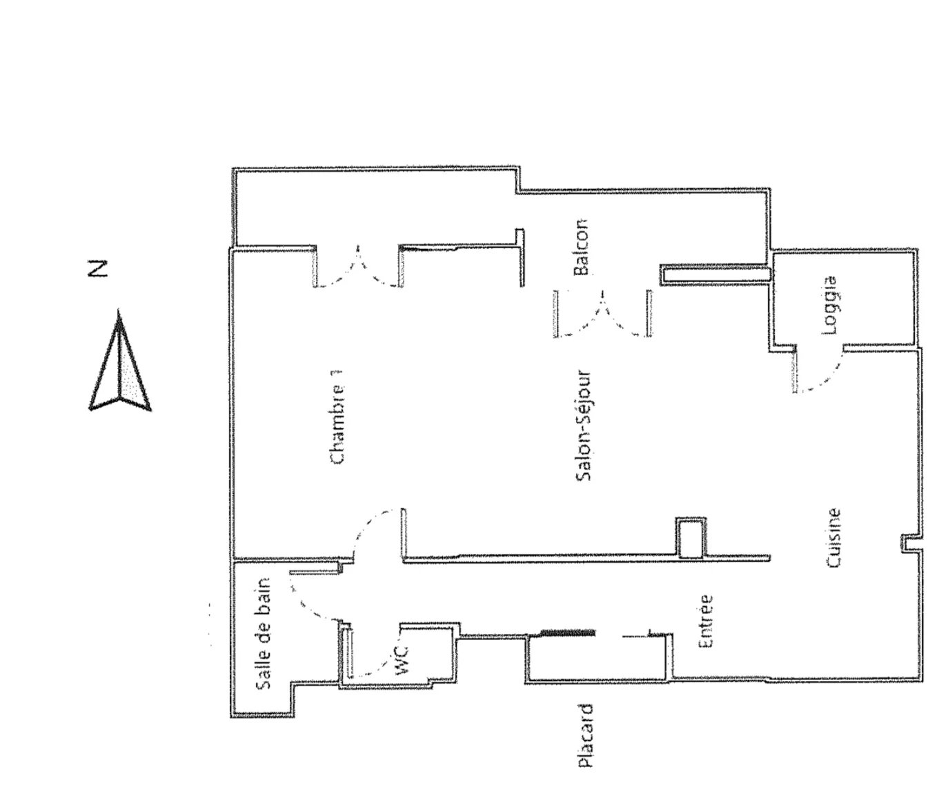
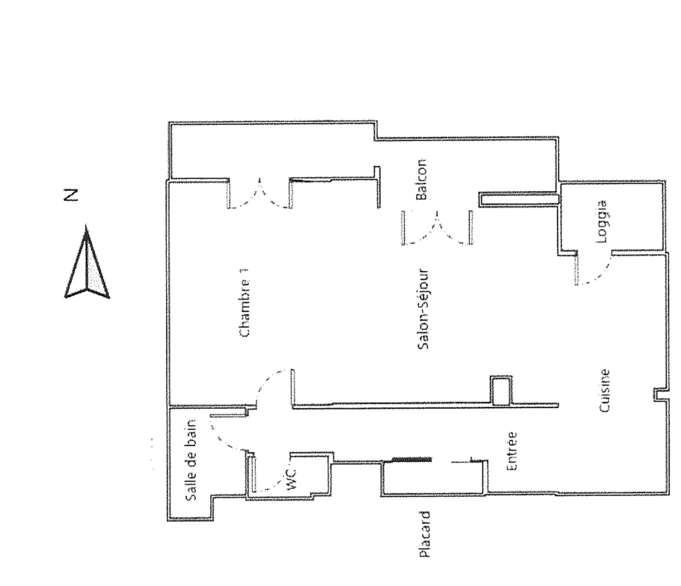
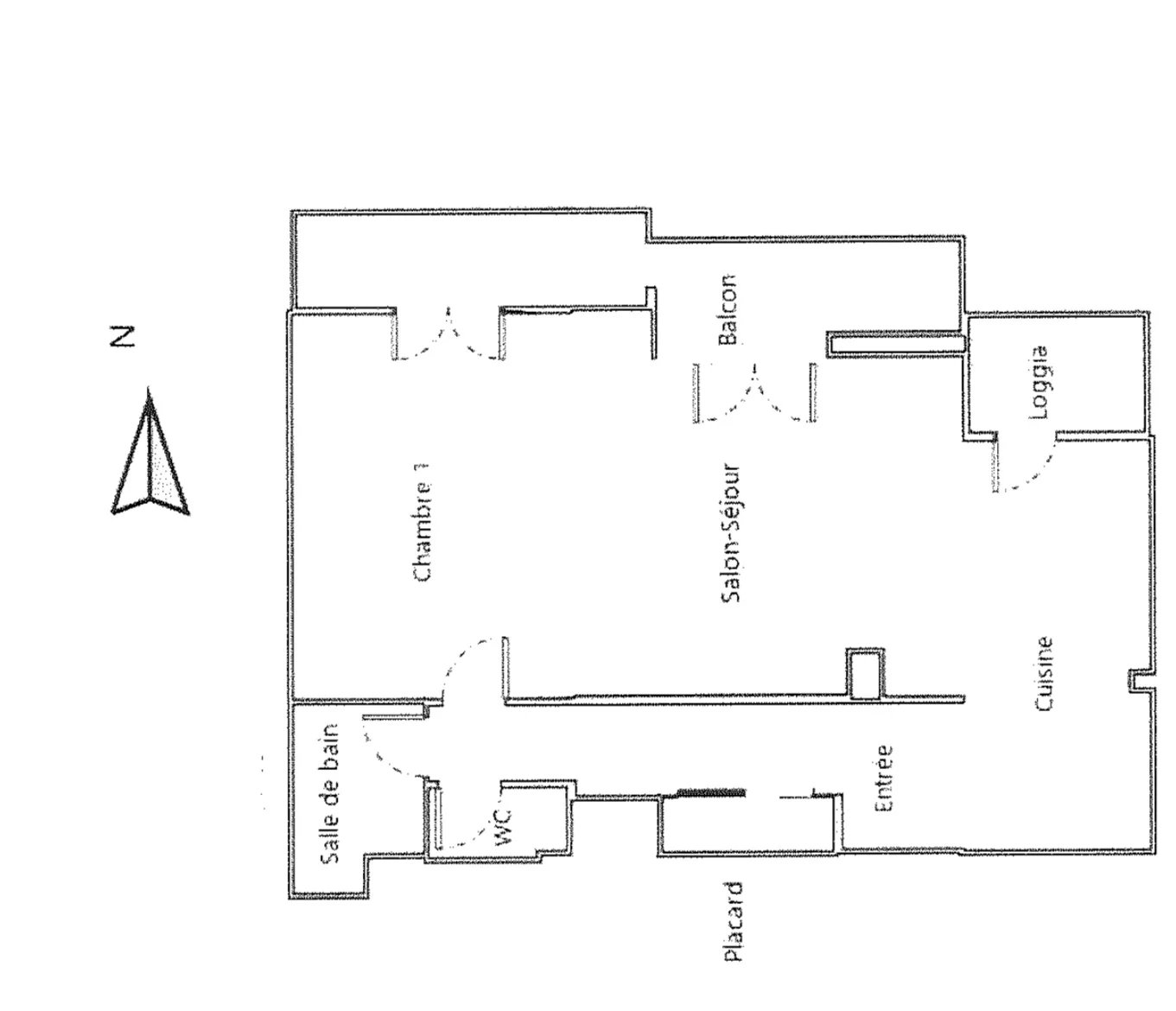
Il se compose d’une pièce principale lumineuse avec cuisine ouverte, d’une chambre confortable, d’une salle de bain, d’un WC, d’un balcon et d’une cave pour vos rangements.
L’appartement a été entièrement refait à neuf, prêt à être habité ou loué immédiatement. Son emplacement privilégié, à deux pas des plages et proche de toutes commodités, en fait un investissement sûr et attractif. Cette annonce immobilière a été rédigée sous la responsabilité éditoriale de l'agent commercial mandataire immobilier Sandrine LASCOLS.
À seulement 200 mètres des plages et à proximité immédiate du centre-ville, ce charmant appartement T2 entièrement rénové représente une opportunité idéale pour un investissement locatif.
Il se compose d’une pièce principale lumineuse avec cuisine ouverte, d’une chambre confortable, d’une salle de bain, d’un WC, d’un balcon et d’une cave pour vos rangements.
L’appartement a été entièrement refait à neuf, prêt à être habité ou loué immédiatement. Son emplacement privilégié, à deux pas des plages et proche de toutes commodités, en fait un investissement sûr et attractif. Cette annonce immobilière a été rédigée sous la responsabilité éditoriale de l'agent commercial mandataire immobilier Sandrine LASCOLS.
Mandat : 11602
Informations complémentaires
- Honoraires à charge de l'acquéreur :
- Prix hors honoraires : 185000 €
- Honoraires TTC à la charge de l'acquéreur : 12000 €
- Vue : Rue
- Air conditionné
- Double vitrage
- Fenêtre PVC
- Chauffage : Collectif Eau chaude Central
- Étage du bien : 2ème
- Tout à l'égout
- Chauffe-eau Collective
- État general : Excellent état
- Taxe Foncière : 1082 €
- Entrée
- Toilettes
- Salle de douche
- Chambre
- Séjour
- Cuisine
- Loggia
- Cave
Diagnostic énergétique
N.B. : Tous les commerciaux du réseau AgentMandataire.fr sont des agents mandataires juridiquement et financièrement indépendants. Ils sont tous immatriculés au registre spécial des agents commerciaux (RSAC) et agissent pour le compte de l'agence immobilière Agent Mandataire France SAS sous la carte professionnelle n°CPI 7501 2018 000 024 109 délivrée par la CCI Paris-IDF le 01/02/2021.