Description du bien immobilier
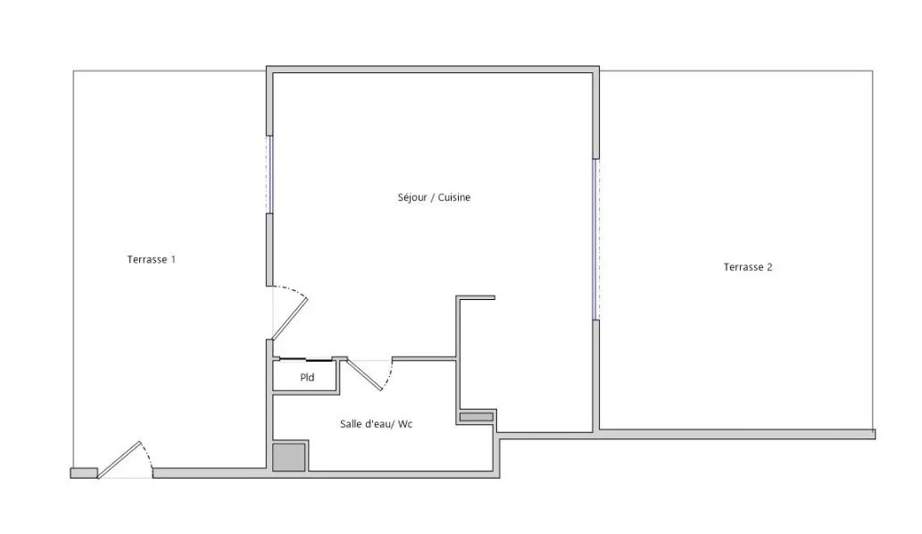
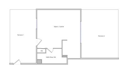
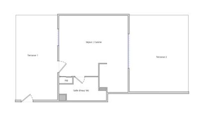
SATHONAY CAMP - STUDIO DE 32M² TRES LUMINEUX AU 2IEME ETAGE SUR 2 SANS ASCENSSEUR DANS UNE RESIDENCE STANDING DE 2017 - TRAVERSANT - EXPOSITION EST OUEST - AVEC DEUX TERRASSES (UNE DE 26m² ET UNE DE 18m²) IDEAL POUR AMENAGER DEUX ESPACES DIFFERENTS - AU CALME DANS UNE RESIDENCE ARBOREE AVEC UN LOCAL A VELO - FAIBLE CHARGE 82€ PAR MOIS - CHAUFFAGE INDIVIDUEL AU GAZ - CLIMATISATION - TAXE FONCIERE DE 747€ PAR AN - Découvrez ce charmant appartement à Sathonay-Camp de 32 m², idéal pour une personne ou un couple recherchant un espace moderne et confortable. Situé dans un quartier paisible et verdoyant, cet appartement lumineux comprend une pièce principale équipée de grandes fenêtres coulissantes et d’un double vitrage.
L’appartement offre des équipements modernes, notamment des stores électriques et des brise-soleil, garantissant confort et facilité d'utilisation. L’éclairage extérieur et le système pour tuyau d’arrosage intégré ajoutent une touche de praticité et d’élégance à cet espace de vie unique.
Profitez d’un cadre de vie agréable avec deux terrasses spacieuses, parfaite pour des moments de détente en plein air. Ce bien rare est une opportunité à ne pas manquer pour ceux qui cherchent un investissement de qualité ou un pied-à-terre confortable à Sathonay-Camp. Coup de cœur assuré. Possibilité d'avoir un garage boxe en sus du prix. Cette annonce immobilière a été rédigée sous la responsabilité éditoriale de l'agent commercial mandataire immobilier Brigitte CLAUDE.
                                                    L’appartement offre des équipements modernes, notamment des stores électriques et des brise-soleil, garantissant confort et facilité d'utilisation. L’éclairage extérieur et le système pour tuyau d’arrosage intégré ajoutent une touche de praticité et d’élégance à cet espace de vie unique.
Profitez d’un cadre de vie agréable avec deux terrasses spacieuses, parfaite pour des moments de détente en plein air. Ce bien rare est une opportunité à ne pas manquer pour ceux qui cherchent un investissement de qualité ou un pied-à-terre confortable à Sathonay-Camp. Coup de cœur assuré. Possibilité d'avoir un garage boxe en sus du prix. Cette annonce immobilière a été rédigée sous la responsabilité éditoriale de l'agent commercial mandataire immobilier Brigitte CLAUDE.
Mandat : 11303
Informations complémentaires
- Double vitrage
 - Fenêtre aluminium
 - Fenêtres coulissantes
 - Stores électriques
 - Volets roulants électriques
 - Arrosage
 - Éclairage extérieur
 - Jardin en copropriété
 - Fibre optique
 - Local à vélo
 - Digicode
 - Interphone
 - Portail électrique
 - Chauffage : Individuel Gaz Radiateur
 - Étage du bien : 2ème
 - Année de construction : 2017
 - Tout à l'égout
 - Chaudière Individuelle
 - État general : Excellent état
 - Taxe Foncière : 747 €
 - Terrasse
 - Terrasse
 - Appartement
 
Diagnostic énergétique
N.B. : Tous les commerciaux du réseau AgentMandataire.fr sont des agents mandataires juridiquement et financièrement indépendants. Ils sont tous immatriculés au registre spécial des agents commerciaux (RSAC) et agissent pour le compte de l'agence immobilière Agent Mandataire France SAS sous la carte professionnelle n°CPI 7501 2018 000 024 109 délivrée par la CCI Paris-IDF le 01/02/2021.