Description du bien immobilier
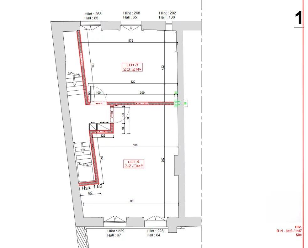
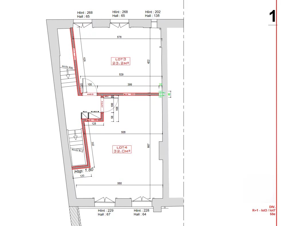
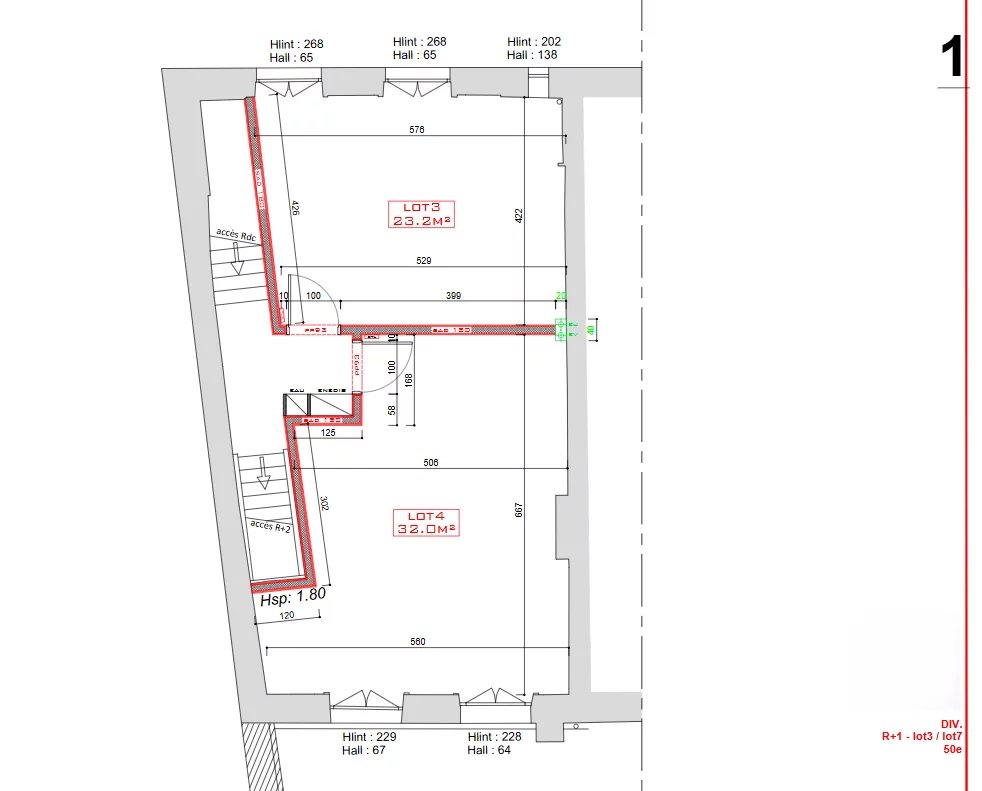
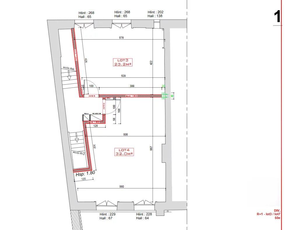
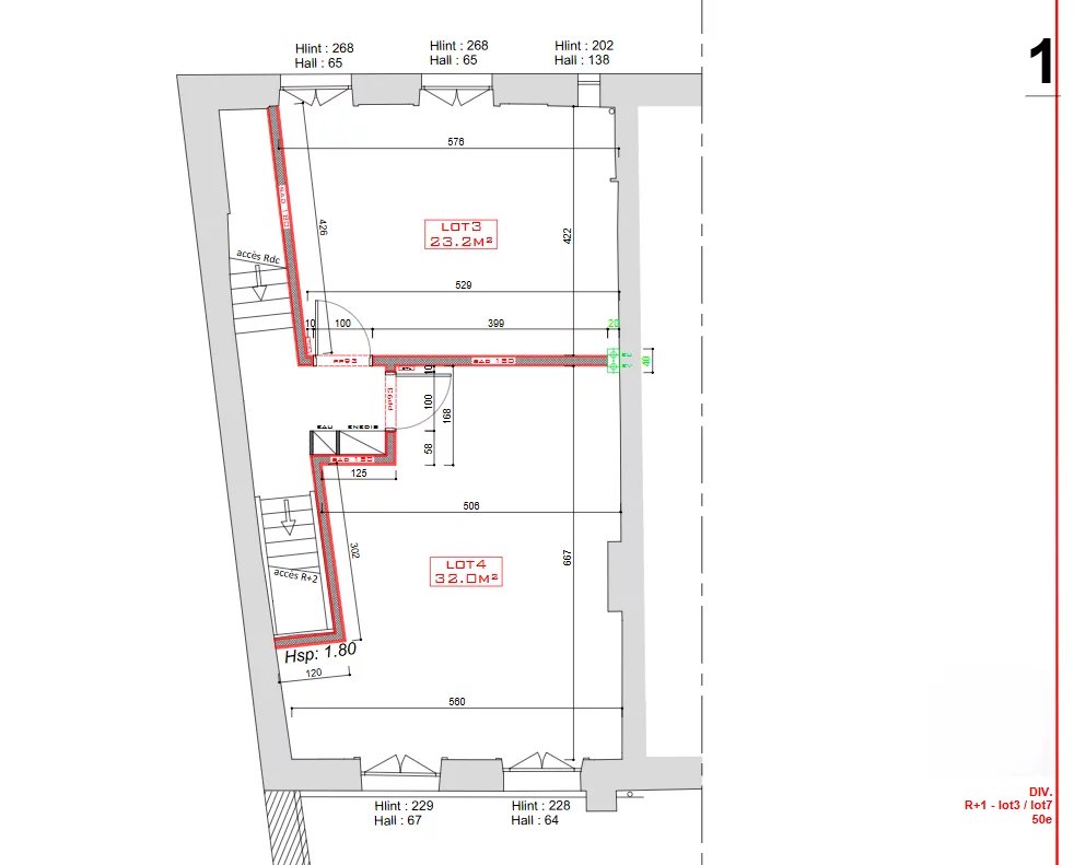
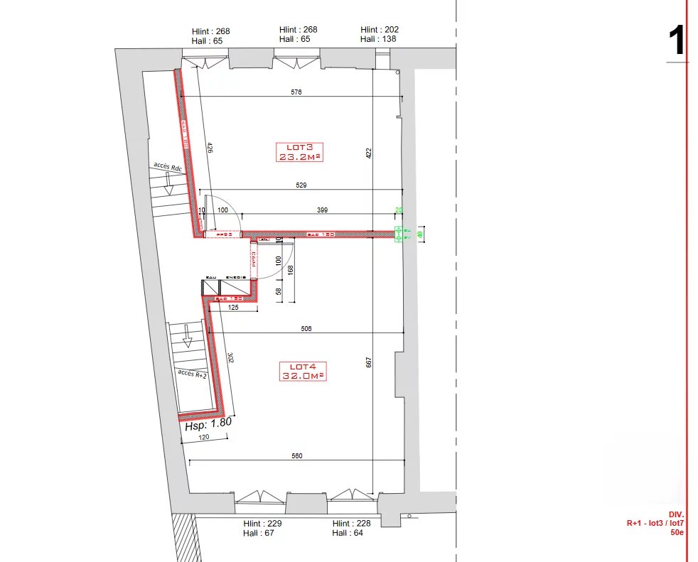
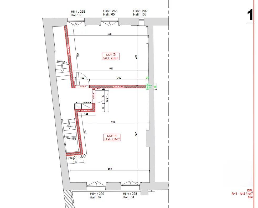
.PLATEAUX BRUTS À AMÉNAGER (23-30 m²) - IDÉAL INVESTISSEMENT LOCATIF ÉTUDIANT - SECTEUR CALME ET PRATIQUE !
Dans un charmant immeuble en pierre, découvrez nos plateaux à aménager, offrant des surfaces de 23 m² à 30 m². Bénéficiez d'un emplacement idéal à proximité de la faculté et du centre commercial Centre Deux, dans un secteur calme très prisé par les étudiants.
Caractéristiques :
Plateaux livrés prêts à être aménagés : GTL installée (fluides en attente), dalle béton récente.
Liberté totale d'aménagement intérieur : créez des espaces optimisés et personnalisés.
Possibilité de bénéficier d'un déficit foncier (informations sur demande).
Situation géographique idéale pour la location étudiante.
Ces plateaux représentent une opportunité unique de réaliser un investissement locatif sur mesure dans un secteur dynamique. N'hésitez pas à nous contacter pour organiser une visite et découvrir le potentiel de ces biens. Spécial investisseur ou premier achat.'(pas de DPE pas de système de chauffage). Cette annonce immobilière a été rédigée sous la responsabilité éditoriale de l'agent commercial mandataire immobilier Corinne MAKOUA.
Dans un charmant immeuble en pierre, découvrez nos plateaux à aménager, offrant des surfaces de 23 m² à 30 m². Bénéficiez d'un emplacement idéal à proximité de la faculté et du centre commercial Centre Deux, dans un secteur calme très prisé par les étudiants.
Caractéristiques :
Plateaux livrés prêts à être aménagés : GTL installée (fluides en attente), dalle béton récente.
Liberté totale d'aménagement intérieur : créez des espaces optimisés et personnalisés.
Possibilité de bénéficier d'un déficit foncier (informations sur demande).
Situation géographique idéale pour la location étudiante.
Ces plateaux représentent une opportunité unique de réaliser un investissement locatif sur mesure dans un secteur dynamique. N'hésitez pas à nous contacter pour organiser une visite et découvrir le potentiel de ces biens. Spécial investisseur ou premier achat.'(pas de DPE pas de système de chauffage). Cette annonce immobilière a été rédigée sous la responsabilité éditoriale de l'agent commercial mandataire immobilier Corinne MAKOUA.
Mandat : 10498
Informations complémentaires
- Local à vélo
- Étage du bien : 1er
- Chambre
N.B. : Tous les commerciaux du réseau AgentMandataire.fr sont des agents mandataires juridiquement et financièrement indépendants. Ils sont tous immatriculés au registre spécial des agents commerciaux (RSAC) et agissent pour le compte de l'agence immobilière Agent Mandataire France SAS sous la carte professionnelle n°CPI 7501 2018 000 024 109 délivrée par la CCI Paris-IDF le 01/02/2021.